Rozkładowe M4*parking*Bałuty*dwa balkony

lokalizacja: Łódź, Zgierska

499 000,00 PLN

7 154,12 PLN

Opis nieruchomości

Przestronne mieszkanie z potencjałem | 69,75 m² | 8. piętro | ul. Zgierska, Łódź

$$$ Cena: 499 000 zł

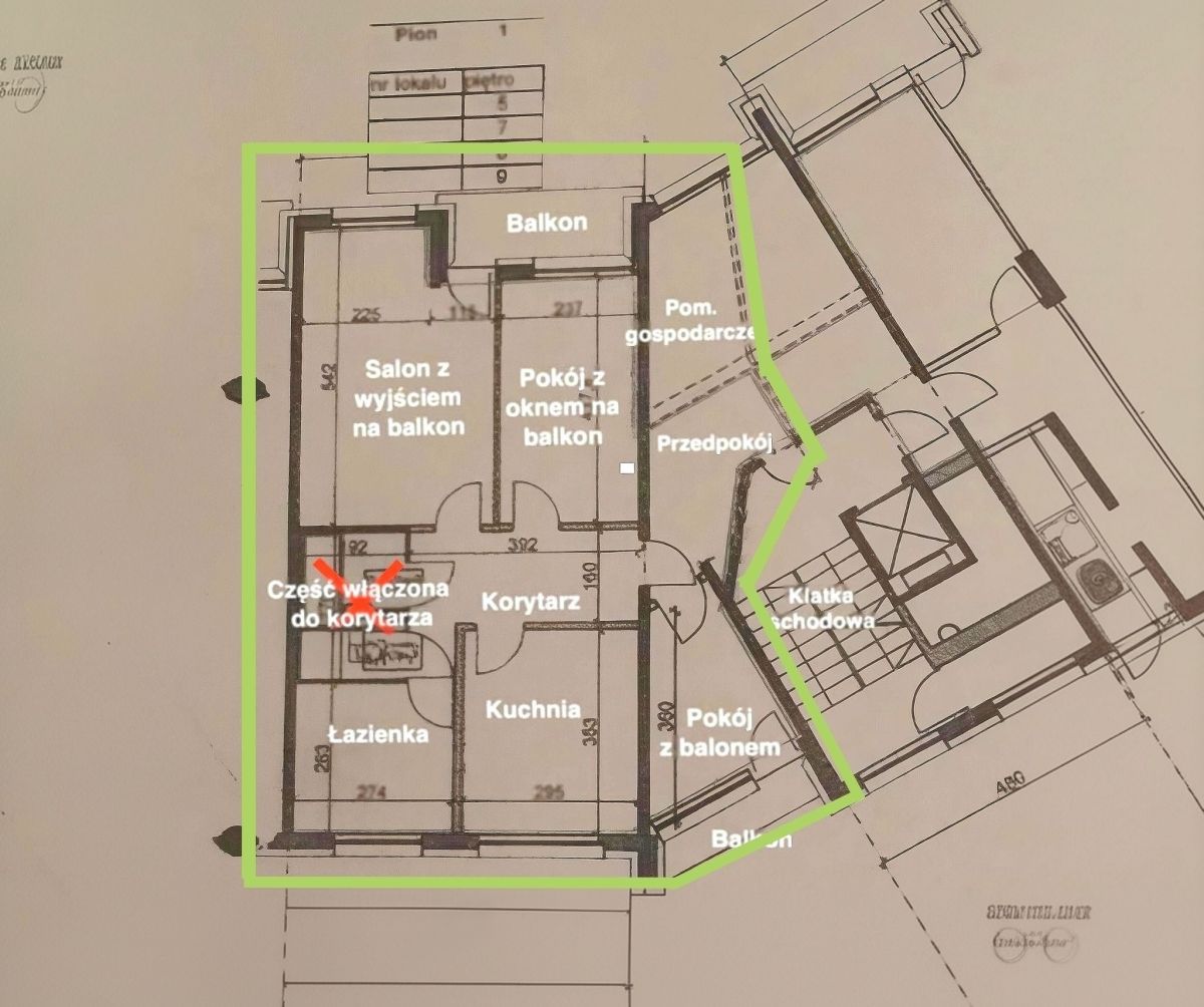
Na sprzedaż oferuję funkcjonalne i bardzo przestronne mieszkanie spółdzielczo-własnościowe z księgą wieczystą, położone na 8. piętrze zadbanego bloku przy ul. Zgierskiej 142 w Łodzi. Lokal o powierzchni 69,75 m² to idealna propozycja dla osób poszukujących mieszkania z dużym potencjałem aranżacyjnym lub pod inwestycję.
Stan: do remontu / odświeżenia | Wolne od zaraz

Układ i atuty mieszkania

Mieszkanie jest dwustronne, jasne i bardzo ustawne, z dużą liczbą okien oraz dwoma balkonami, co jest rzadkością w tej lokalizacji.

W skład lokalu wchodzą:

- duży salon z wyjściem na balkon typu loggia,
- przestronna, otwarta kuchnia połączona z przedpokojem - idealna do nowoczesnej aranżacji,
- sypialnia,
- pokój typu gabinet z drugim balkonem,
- schowek / pomieszczenie techniczne z oknem (możliwość aranżacji garderoby lub pralni),
- duża łazienka z oknem, wyposażona w wannę oraz prysznic.

Dodatkowe udogodnienia:

możliwość korzystania z komórki lokatorskiej na półpiętrze, tuż przy mieszkaniu,

miejsce parkingowe pod blokiem - koszt ok. 100 zł/miesięcznie.

Lokalizacja - Bałuty, wszystko w zasięgu spaceru

Ryneczek przy ul. Pojezierskiej oraz Rynek Bałucki,

liczne sklepy, punkty usługowe, apteki, szkoły i przedszkola,

tereny zielone i skwery idealne do wypoczynku,

bardzo dobra komunikacja miejska - szybki dojazd do centrum Łodzi.

Dlaczego warto?

✔ atrakcyjna cena 499 000 zł za duży metraż
✔ funkcjonalny, rzadko spotykany układ
✔ dwa balkony i okna w niemal każdym pomieszczeniu
✔ spółdzielczo-własnościowe z KW
✔ idealne do własnej aranżacji lub jako inwestycja
✔ mieszkanie dostępne od zaraz

*** Zapraszam do kontaktu i na prezentację - to mieszkanie ma ogromny potencjał i doskonałą lokalizację.

Uwaga!!!

Opis oferty zawarty w ogłoszeniu sporządzany został na podstawie oględzin nieruchomości oraz informacji uzyskanych od właściciela, może podlegać aktualizacji i nie stanowi oferty określonej w art. 66 i następnych K.C.

Prezentacja nieruchomości jest możliwa tylko w przypadku podpisania umowy pośrednictwa z agentem. Za usługi pośrednictwa pobieramy opłatę prowizyjną. 

Właściciel wyraża zgodę na oglądanie nieruchomości tylko po uprzednio umówionym spotkaniu.

Kontakt do agenta #781290468
7pietro.michal@gmail.com




Adres strony www: https://7pietro.com

Kontakt do opiekuna:

7 Piętro

Michał Biernacki
Nieprawidłowy adres E-mail
Mapa

Strona korzysta z plików cookie w celu realizacji usług zgodnie z Polityką prywatności. Możesz określić warunki przechowywania lub dostępu do cookie w Twojej przeglądarce.