M3 po remoncie parter blok z cegły

lokalizacja: Łódź, Wojska Polskiego

432 000,00 PLN

9 000,00 PLN

Opis nieruchomości

Przytulne, wyremontowane mieszkanie w świetnej lokalizacji!

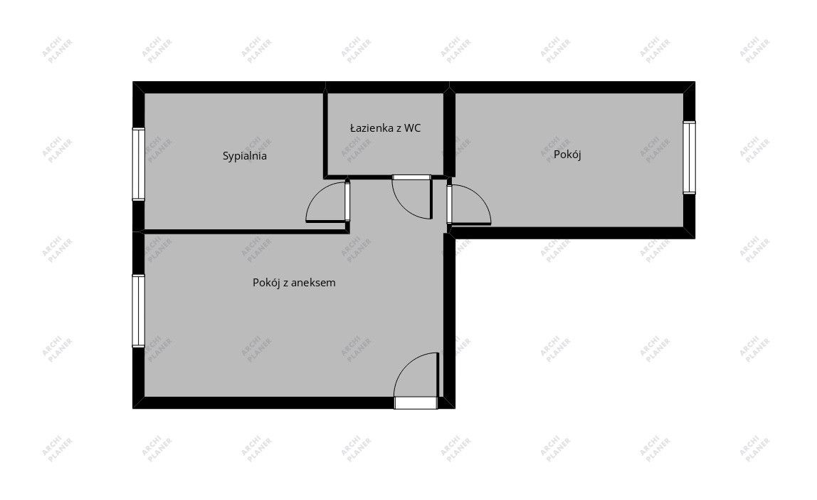
Zapraszam do zapoznania się z ofertą 3-pokojowego mieszkania o powierzchni 48 m², położonego na parterze w niskim bloku z cegły przy ul. Wojska Polskiego w Łodzi.

Dzięki przemyślanemu układowi pomieszczeń mieszkanie jest funkcjonalne i wygodne - idealne zarówno dla singla, pary, czy pary z dzieckiem jak i na inwestycję pod wynajem.
UKŁAD POMIESZCZEŃ:

✅ Pokój/sypialnia - przytulna przestrzeń do odpoczynku
✅ Drugi pokój/sypialnia/biuro
✅ Osobna przestrzeń z aneksem kuchennym - z meblami wykonanymi na wymiar przez stolarza
✅ Łazienka
✅ Piwnica - dodatkowa przestrzeń do przechowywania

ZALETY MIESZKANIA:

✨ Po generalnym remoncie - wymieniona instalacja elektryczna i wodno-kanalizacyjna, okna, grzejniki etc. 
✨ Nowoczesne wykończenie, nowe drzwi wejściowe i wewnętrzne
✨ Ciepłe i energooszczędne - blok po termomodernizacji, klatki zabezpieczone domofonem
✨ Gotowe do wprowadzenia - wolne od wad prawnych, bez zadłużeń, pełna własność z księgą wieczystą
✨ Możliwość doposażenia w brakujące sprzęty AGD - opcja dla kupującego za dodatkową opłatą

ŚWIETNA LOKALIZACJA - DLA SIEBIE I POD WYNAJEM!

* Blisko centrum - szybki dostęp do miejskich atrakcji i usług
* Dobra komunikacja - przystanki autobusowe i tramwajowe w pobliżu
* Pełna infrastruktura - sklepy, markety, apteki, szkoły, restauracje
* Zielone tereny - idealne miejsca na spacery i rekreację

! Zadzwoń i umów się na prezentację!


Uwaga !!!
Opis oferty zawarty w ogłoszeniu sporządzany został na podstawie oględzin nieruchomości oraz informacji uzyskanych od właściciela, może podlegać aktualizacji i nie stanowi oferty określonej w art. 66 i następnych K.C.
Prezentacja nieruchomości jest możliwa tylko w przypadku podpisania umowy pośrednictwa z agentem.
Za usługi pośrednictwa pobieramy wynagrodzenie prowizyjne.
Właściciel wyraża zgodę na oglądanie nieruchomości tylko po uprzednio umówionym spotkaniu.
Kontakt do agenta #781290468
7pietro.michal@gmail.com

Adres strony www: https://www.7pietro.com

Kontakt do opiekuna:

7 Piętro

Michał Biernacki
Nieprawidłowy adres E-mail
Mapa

Strona korzysta z plików cookie w celu realizacji usług zgodnie z Polityką prywatności. Możesz określić warunki przechowywania lub dostępu do cookie w Twojej przeglądarce.