Nieruchomość:
Położona jest na 1 piętrze w 4-piętrowym kameralnym budynku po termomodernizacji.
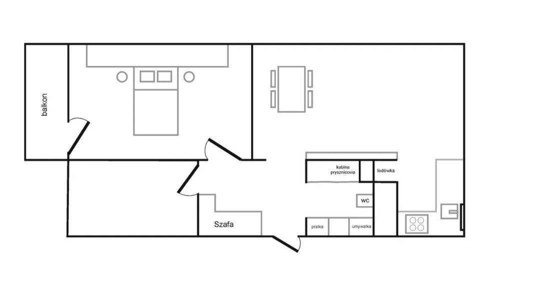
Na mieszkanie składa się:
- przestronny salon
- sypialnia z łóżkiem i zabudową stolarską
- pokój/garderoba/biuro
- osobna, ustawna kuchnia w pełni umeblowana i wyposażona
- łazienka z prysznicem i wc
Nieruchomość świeżo po remoncie generalnym, w tym: wymiana elektryki, hydrauliki, wymiana okien, drzwi, położenie gładzi, pełne umeblowanie wykonane pod wymiar przez stolarza oraz wyposażenie w sprzęty AGD. Mieszkanie jest gotowe do wprowadzenia bez nakładów finansowych.
Miejsca parkingowe ogólnodostępne pod blokiem.
Do mieszkania przynależy komórka lokatorska.
Czynsz: 600zł
Lokalizacja:
Bardzo atrakcyjna lokalizacja. W pobliżu pełna infrastruktura usługowo-handlowa, park, markety, rynek, szkoły, restauracje oraz świetne połączenie komunikacyjne ze wszystkimi częściami miasta.
Uwaga!!!
Opis oferty zawarty w ogłoszeniu sporządzany został na podstawie oględzin nieruchomości oraz informacji uzyskanych od właściciela, może podlegać aktualizacji i nie stanowi oferty określonej w art. 66 i następnych K.C.
Prezentacja nieruchomości jest możliwa tylko w przypadku podpisania umowy pośrednictwa z agentem.
Właściciel wyraża zgodę na oglądanie nieruchomości tylko po uprzednio umówionym spotkaniu.
Kontakt do agenta #726228239
7pietro.sara@gmail.com
Opis oferty zawarty w ogłoszeniu sporządzany został na podstawie oględzin nieruchomości oraz informacji uzyskanych od właściciela, może podlegać aktualizacji i nie stanowi oferty określonej w art. 66 i następnych K.C.
Prezentacja nieruchomości jest możliwa tylko w przypadku podpisania umowy pośrednictwa z agentem.
Właściciel wyraża zgodę na oglądanie nieruchomości tylko po uprzednio umówionym spotkaniu.
Kontakt do agenta #726228239
7pietro.sara@gmail.com