M3 z potencjałem*teren zamknięty*do remontu

lokalizacja: Łódź, Tokarzewskiego

350 000,00 PLN

7 070,71 PLN

Opis nieruchomości

Na sprzedaż 2-pokojowe mieszkanie z możliwością 3 pokoi | Łódź, ul. Tokarzewskiego

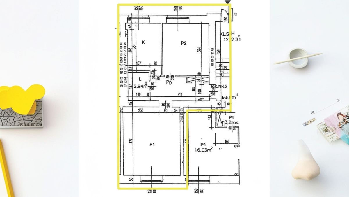
Na sprzedaż mieszkanie o powierzchni 49,16 m², położone na 1. piętrze w niskim bloku z cegły przy ul. Tokarzewskiego w Łodzi. Lokal z dużym potencjałem aranżacyjnym - idealny zarówno do zamieszkania, jak i pod inwestycję.

Podstawowe informacje:

Powierzchnia: 49,16 m²

Piętro: 1

Budynek: niski blok z cegły

Wysokość pomieszczeń: ok. 275 cm

Stan: do remontu lub większego odświeżenia

Forma własności: pełna własność z księgą wieczystą


Układ i możliwości:

Obecny układ obejmuje:

duży, ustawny salon

przestronną sypialnię

dużą, oddzielną kuchnię (meble kuchenne + AGD w cenie)

łazienkę z WC

przedpokój


Dzięki metrażowi i wysokości pomieszczeń istnieje możliwość przekształcenia mieszkania na 3-pokojowe:

pokój dzienny z aneksem kuchennym

dwie niezależne sypialnie


Na podłogach parkiet, który po renowacji może być dużym atutem wnętrza.

Dodatkowe atuty:

komórka lokatorska w piwnicy

czynsz ok. 800 zł (przy 3 osobach, z zaliczkami)

meble kuchenne wraz z AGD w cenie


Parkowanie:

liczne miejsca parkingowe pod blokiem

dodatkowo możliwość wynajęcia miejsca parkingowego za szlabanem w cenie 20 zł/miesiąc


Lokalizacja:

Ul. Tokarzewskiego to spokojna i zielona okolica z dobrą infrastrukturą - w pobliżu sklepy, szkoły, punkty usługowe oraz dogodna komunikacja z centrum Łodzi.


---

Mieszkanie z dużym potencjałem - dla rodziny jak i pod inwestycję. 

Zapraszam do kontaktu. 


Uwaga !!!
Opis oferty zawarty w ogłoszeniu sporządzany został na podstawie oględzin nieruchomości oraz informacji uzyskanych od właściciela, może podlegać aktualizacji i nie stanowi oferty określonej w art. 66 i następnych K.C.
Prezentacja nieruchomości jest możliwa tylko w przypadku podpisania umowy pośrednictwa z agentem.
Za usługi pośrednictwa pobieramy wynagrodzenie prowizyjne.
Właściciel wyraża zgodę na oglądanie nieruchomości tylko po uprzednio umówionym spotkaniu.
Kontakt do agenta #781290468
7pietro.michal@gmail.com

Kontakt do opiekuna:

7 Piętro

Michał Biernacki
Nieprawidłowy adres E-mail
Mapa

Strona korzysta z plików cookie w celu realizacji usług zgodnie z Polityką prywatności. Możesz określić warunki przechowywania lub dostępu do cookie w Twojej przeglądarce.