Na sprzedaż mieszkanie o powierzchni 177m2 w modernistycznym budynku w centrum Łodzi, ostatnio użytkowane jako pracownia architektoniczna. Idealne zarówno do zamieszkania jak i do prowadzenia działalności gospodarczej. Nadaje się na kancelarię adwokacką, notarialną, biuro rachunkowe, pracownię architektoniczną itp.
Atuty Nieruchomości
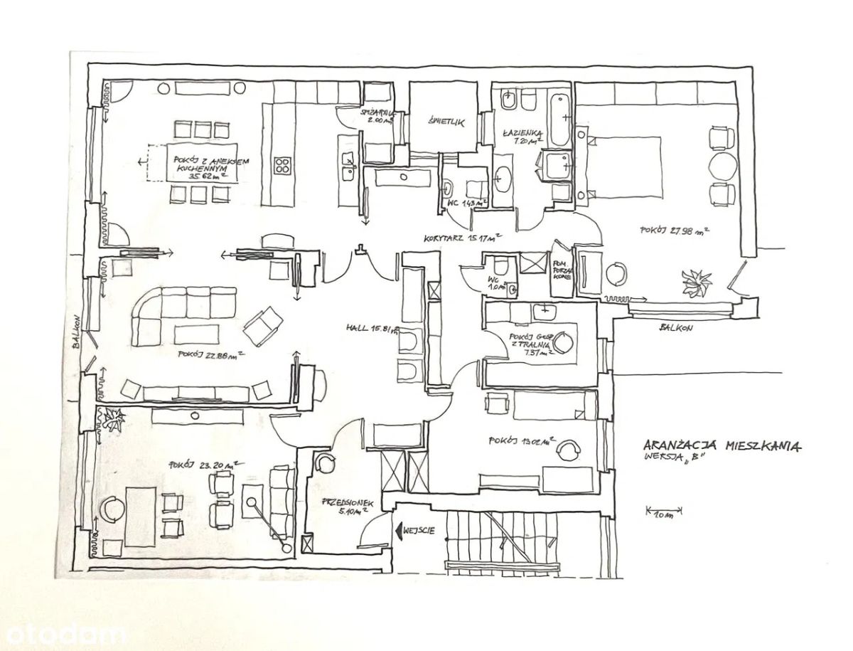
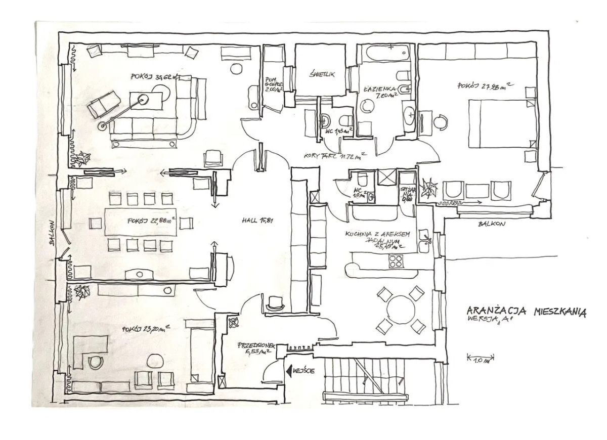
- 5 ustawnych pokoi z przesuwanymi drzwiami, duża przestrzeń
-wymieniona instalacja elektryczna i wodnokanalizacyjna
-do mieszkania przynależą dwie duże komórki lokatorskie
-zaprojektowany i wybudowany jako budynek mieszkalny o bardzo wysokim standardzie,
-zachowane oryginalne detale architektoniczne
-reprezentacyjna klatka schodowa z nowoczesną windą.
-budynek po remoncie elewacji, dachu i klatki schodowej.
-taras i balkon
-winda
-oryginalne rozety sufitowe i parkiet
-oryginalna stolarka drzwiowa, drzwi suwane z kryształowymi szybami
Dodatkowe informacje:
-mieszkanie posiada dwa niezależne wejścia z klatki schodowej i dwie odrębne księgi wieczyste, dające możliwość podziału na dwa niezależne lokale.
-mieszkanie bardzo przestronne i słoneczne. Okna na trzy strony świata.
-mieszkanie posiada wiele możliwości aranżacyjnych - pokazano dwie z nich.
Lokalizacja:
Doskonała komunikacja - bardzo blisko przystanki autobusowe i tramwajowe
Pełna infrastruktura - sklepy, uczelnie wyższe, szkoły, przedszkole, apteki, przychodnie,
Doskonała lokalizacja - blisko Dworca Fabrycznego i Sądu Okręgowego
Usytuowanie w bliskim sąsiedztwie Parku Staszica i Parku Matejki
Budynek - zbudowany niedługo przed wojną (1936 r)
Uwaga!!
Opis oferty zawarty w ogłoszeniu sporządzany został na podstawie oględzin nieruchomości oraz informacji uzyskanych od właściciela, może podlegać aktualizacji i nie stanowi oferty określonej w art. 66 i następnych K.C.
Prezentacja nieruchomości jest możliwa tylko w przypadku podpisania umowy pośrednictwa z agentem.
Właściciel wyraża zgodę na oglądanie nieruchomości tylko po uprzednio umówionym spotkaniu.
5 pokoi w przedwojennej kamienicy/ ścisłe centrum
lokalizacja: Łódź, Prezydenta Gabriela Narutowicza
1 489 000,00 PLN
8 393,46 PLN
Dane szczegółowe
- Typ transakcji: sprzedaż
- Typ nieruchomości: Mieszkanie
- Lokalizacja: Łódź Śródmieście, Prezydenta Gabriela Narutowicza
- Powierzchnia:177,40 m2
- Liczba pokoi: 5
- Rok budowy: 1936
- Piętro: 3 z 3
- Numer oferty: 395584
- Cena: 1 489 000,00 PLN
- Cena za m2: 8 393,46 PLN