Dwa pokoje z balkonem na Teofilowie

lokalizacja: Łódź, Rojna

389 000,00 PLN

9 974,36 PLN

Opis nieruchomości

Nieruchomość:
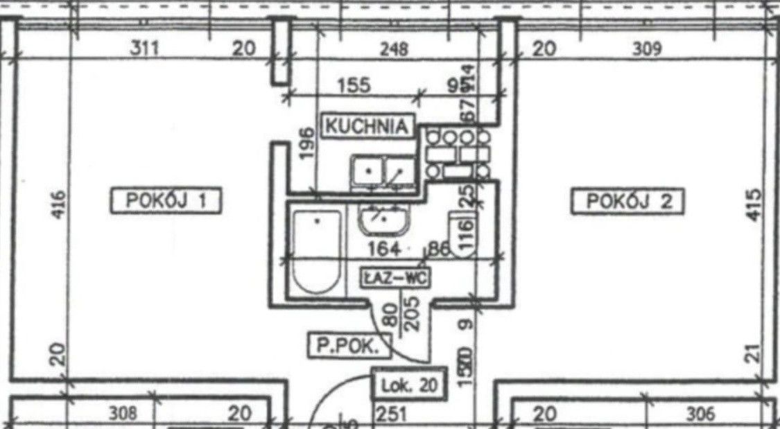
Na sprzedaż dwupokojowe mieszanie z balkonem po generalnym remoncie. Powierzchnia mieszkania to 39m2. Położone na piątym piętrze w bloku przy ulicy Rojnej, osiedle Teofilów.

W lokalu przeprowadzono generalny remont, który obejmował;
- wymianę instalacji elektrycznej i wodno-kanalizacyjnej,
- wymianę podłóg, drzwi wewnętrznych i zewnętrznych,
- na ścianach położono nowe gładzie.

Mieszkanie składa się z:
- salonu z balkonem,
- jasnej kuchni,
- przestronnej sypialni,
- łazienki z prysznicem,
- przedpokoju.

Atuty nieruchomości:
- w pełni wyremontowane i wyposażone,
- wysoki standard wykończeń,
- bardzo jasne i przestronne,
- zabudowa w kuchni wykonana na wymiar przez stolarza,
- nowoczesne AGD,
- duża ilość miejsca na przechowywanie,
- okna PCV,
- zadbana i przestronna klatka schodowa,
- winda,
- spokojne sąsiedztwo.

Lokalizacja:
Pełna infrastruktura handlowo-usługowa. Mnogość rozwiązań komunikacji miejskiej. W okolicy liczna zieleń śródmiejska. Wokół bloku znajdują się możliwe do wynajęcia miejsca parkingowe.

Uwaga!!

Opis oferty zawarty w ogłoszeniu sporządzany został na podstawie oględzin nieruchomości oraz informacji uzyskanych od właściciela, może podlegać aktualizacji i nie stanowi oferty określonej w art. 66 i następnych K.C.

Prezentacja nieruchomości jest możliwa tylko w przypadku podpisania umowy pośrednictwa z agentem.

Właściciel wyraża zgodę na oglądanie nieruchomości tylko po uprzednio umówionym spotkaniu.
Kontakt do agenta #798682282
7pietro.julia@gmail.com

Kontakt do opiekuna:

7 Piętro

Julia Zdziechowska
Nieprawidłowy adres E-mail
Mapa

Strona korzysta z plików cookie w celu realizacji usług zgodnie z Polityką prywatności. Możesz określić warunki przechowywania lub dostępu do cookie w Twojej przeglądarce.